speciale_excl_a2_tn
Kowalski Haus Bildmarke

Kowalski - Haus

Bildmarke geschützt

individuell und sorglos bauen

Ambiente_a_tn
01_tn Kowalski Haus Familie Banner2011
Albert-Linie

Kowalski Haus „ANNA 116“

Jedes Haus erzählt seine eigene Geschichte. Inspiriert durch Augenblicke und Begegnungen aus dem Leben, entwickelt sich das Bauwerk bereits in der ersten, persönlichen Vorstellung.

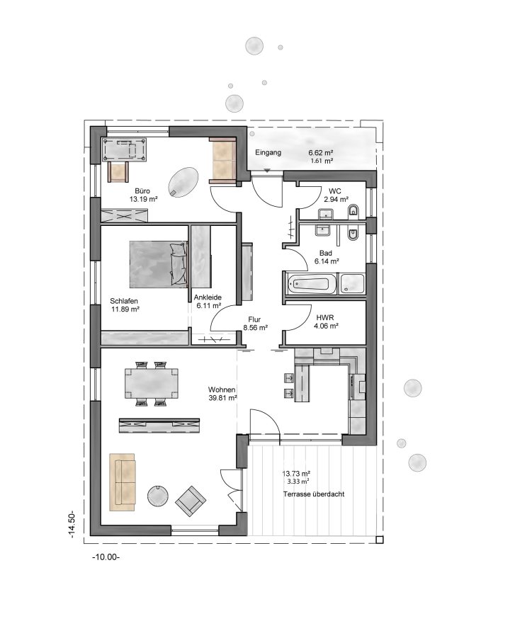
Als Grundgerüst für ein außergewöhnliches Wohngefühl und in weiser Vorhersicht für die Zukunft bietet ein Bungalow Platz für alle Bedürfnisse bequem auf einer Ebene. In ihrer äußeren Erscheinungsform verkörpert Bungalow ANNA 116 puristische Eleganz mit charmanten Hingucker-Akzenten. Die individuelle, weiße Form ummantelt die Räume wie eine Schutzwand, die das Eigenheim symbolisch behütet. Auflockernde Merkmale entstehen durch den raumtrennenden Fassaden-Materialmix und die großzügige Fensterfront zur Terrassenseite. Ein gemeinsamer Wohn- und Essbereich lädt durch die imposanten Raumhöhen, die offene Gestaltung bis unter die Dachhaut, zum Verbleiben und Durchatmen ein. Der Grundriss passt sich flexibel, sowohl Kleinfamilien, als auch Single-Haushalten an.

Den Bungalow ANNA 116 bauen wir für Sie wahlweise als Fertighaus oder in Massivbauweise, aber in jedem Fall energieeffizient und kostensparend.

  • Der Eingangsbereich zeichnet sich durch einen markanten Rücksprung ab, die Überdachung schützt bei der Schlüsselsuche vor Witterungseinflüssen.
  • Sobald das Haus betreten ist, reicht der Blick sogar bis in die Grünanlage des Gartens.
  • Die Diele bietet angemessenen Spielraum für Garderobenmöglichkeiten und als Bewegungsfläche.
  • Optimaler Schlaf-Komfort und nützliche Ordnungsfunktionen finden in den zugehörigen Räumen ihren Platz.
  • Unterhalb des Satteldaches kann alternativ Stauraum in Form eines Spitzbodens entstehen.
  • Außenliegende Schiebeläden in Holzoptik sind als Sonderwunsch ausführbar
  • Grundriss und Fassade können nach Ihren Wünschen gestaltet werden.
    • Kellergeschoss auf Wunsch
    • Große Fenster für viel Lichteinfall
    • Hochwertige Ausstattung
    • Zukunftsorientierte Haustechnik mit Solaranlage und Wärmepumpe
    • Hohe Dämmung bis hin zum Passivhaus
    • Moderne, anspruchsvolle Architektur

Prospekt Bungalow Anna

Kowalski Haus Bungalow Anna Seitenansicht k2
Kowalski Haus Bungalow Anna Front k
Kowalski Haus Bungalow Anna Gartenansicht k2

Baukörpermass: 14,50 m  x 10 m

 Haustyp:

Bungalow Anna

 Nutz-/Wohnfläche:

ca. 116 m² / ca. 116 m²

 Bauweise:

Massivbauweise (Stein auf Stein) oder Fertighaus

Zimmer:

3 + 4 Zimmer

Kowalski Haus Bungalow Anna Grundriss
zurueck03